Vil bygge 32 lejligheder i den centrale del af Sæby
En mulig køber af ejendommen beliggende Krystalgade 6-8 og Søndergade 22 i Sæby har kontaktet Frederikshavn Kommune for at få afklaret, om et spændende byggeprojekt har gang på jord.
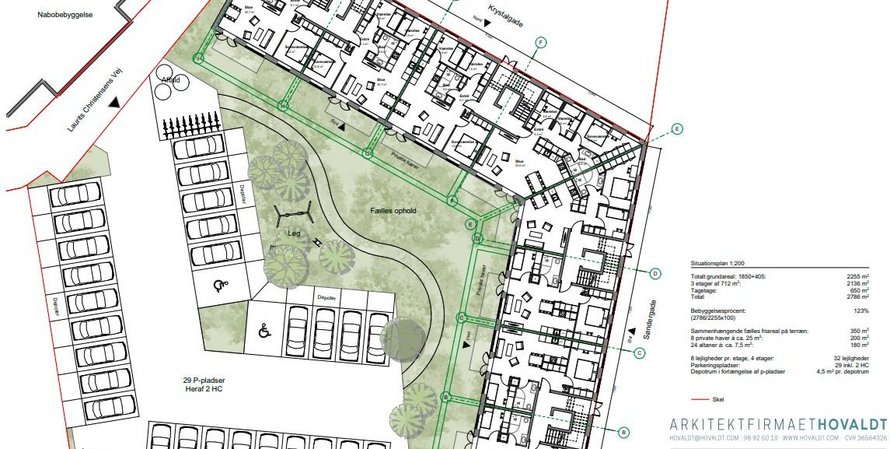
Vedkommende ønsker at nedrive eksisterende beboelses- og butiksbygninger - herunder bagbygninger langs Laurits Christensens Vej og Skolegade - og efterfølgende opføre ny bebyggelse i fire etager og med 32 lejligheder.
Teknik- og kulturdirektør Thomas Eriksen indstiller til Plan- og Miljøudvalget, at politikerne godkender en igangsætning af ny planlægning for området i den centrale del af Sæby.
For at skabe mere liv i byerne er ét af kommuneplanens overordnede mål at løfte utidssvarende byområder og øge antallet af boliger ved at skabe mulighed for byfortætning.
Rammerne for byområdet fastlægger blandt andet, at ny bebyggelse skal opføres som bymæssige etagehuse i tråd med den oprindelig bebyggelses karakter. Lokalplanen fastlægger, at ny bebyggelse skal opføres som sluttet bebyggelse i gadelinje mod Krystaltorvet og Søndergade i indtil to en halv etage. Bygninger må maksimal gives en højde på 11 meter og skal gives en bredde, der er typisk for dansk købstadsbebyggelse.
Stuetagen skal anvendes til butikker, restaurant, hotel, café, offentlige eller halvoffentlige servicebutikker.
Lokalplanen fastlægger desuden detaljerede bestemmelser for bebyggelsens ydre fremtræden herunder facader, tage, vinduer og døre.
Da projektet ikke er i overensstemmelse med gældende lokalplan - blandt andet hvad angår anvendelsen af stueetagen og bygningshøjden - forudsætter projektet, at der igangsættes ny lokalplan.
Det er administrationens vurdering, at der i det omhandlede byområde ikke længere er grundlag for at kræve, at stueetagen skal indrettes til butikker. Skitseprojektet viser én stor bygning, der ikke er opdelt i mindre bygninger med en bredde, der er typisk for købstadsbebyggelsen.
Der er Arkitektfirmaet Hovaldt i Vrå, som har slået stregerne til projektforslaget.








































