Gå til hoved-indhold
05. april 2017 - kl. 10.04

Kampstenslade på Toftegården bevares

  • 1 af 6
    FOTO: Frederikshavn Kommune
  • 2 af 6
    FOTO: Frederikshavn Kommune
  • 3 af 6
    FOTO: Frederikshavn Kommune
  • 4 af 6
    FOTO: Frederikshavn Kommune
  • 5 af 6
    Kampstensladen kan eventuelt ombygges til fælleshus.
  • 6 af 6
    Kampstensladen kan eventuelt ombygges til fælleshus.
Af: Michael Frederiksen

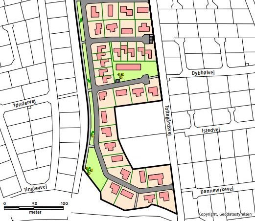
Lokalplanen, der skal omdanne Toftegården i Frederikshavn til et nyt boligområde, fik i går grønt lys af politikerne i Plan- og Miljøudvalget. Lokalplanen sendes derfor snart i offentlig høring.







Lokalplanområdet ligger på Toftegårdsvej mellem to eksisterende parcelhuskvarterer, Sønderjyllandskvarteret og
Tøndervejskvarteret i Frederikshavn. I området ligger Toftegården, der er Frederikshavns tidligere fattiggård.

Toftegården har senest gennem mere end 30 år været anvendt som dyrelegeplads med heste, kaniner og andre mindre dyr. I 2010/2011 foretog Frederikshavn Kommune, som ejer af Toftegården, en undersøgelse af Toftegårdens bebyggelse og konstaterede både fugt og skimmelsvamp. 

Området er nu købt af Larsen & Tamborg, som vil bygge boliger i et område på 3,6 hektar. En skitsetegning viser, at der er plads til omkring 35 boliger.

Kun den mest bevaringsværdige bygning på Toftegården, en kampestenslade, opretholdes med en ny funktion i lokalplanforslaget. Laden kan eventuelt indrettes som fælleshus.

Der udlægges et grønt område og en stiforbindelse i lokalplanområdets vestlige afgrænsning, der muliggør offentlig adgang til området. 

Seneste nyheder

Mest læste nyheder lige nu...